How good it feels to be “comme à la maison”!
We had the pleasure of supporting Descheneaux Architectes in the architectural competition for the transformation of the educational sector and the specialized kindergarten in Givisiez, organized by the association Le Bosquet.
The project “COMME à LA MAISON” was awarded 1st Prize.
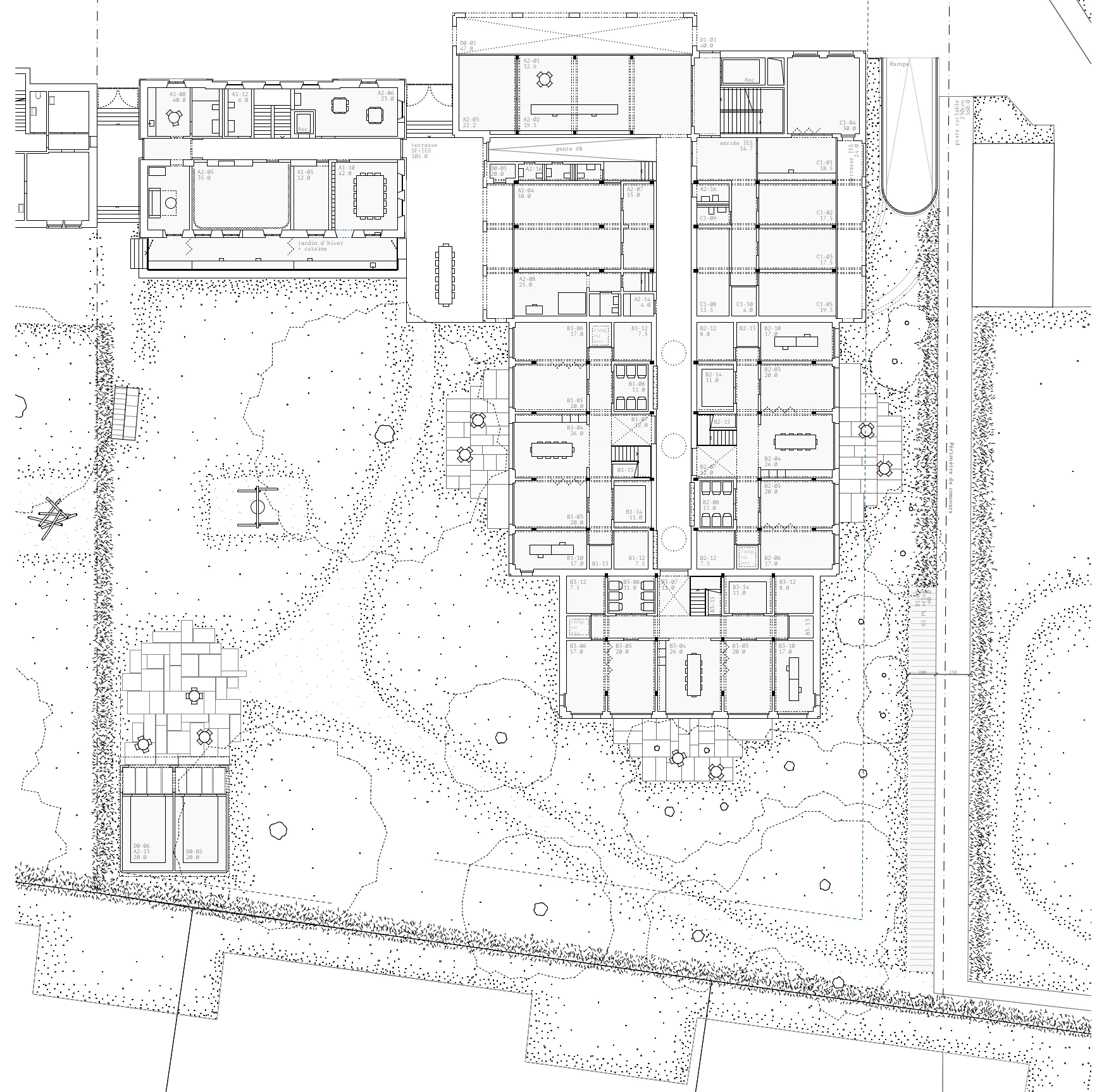
The jury praised an approach that recreates a domestic, warm, and reassuring atmosphere, perfectly suited for children from 3 months to 6 years old:
“This fragmentation into ‘houses’ gives the project a very domestic scale, easily appropriated by children. The authors invoke the contiguity between the ‘houses’ to assert the institutional character. The proposal is overall very relevant.”
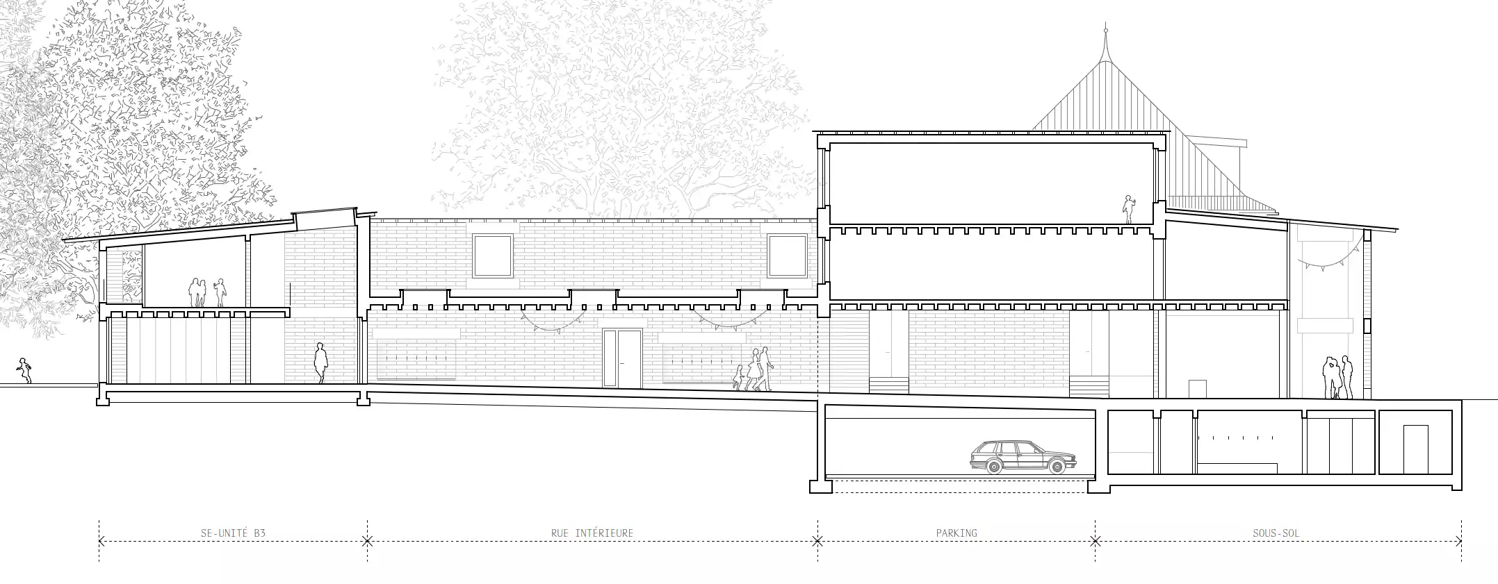
We are delighted to continue our involvement, in particular with the development of load-bearing walls made of rammed earth bricks, stabilizing floors where the use of locally sourced solid wood will be maximized. Our office will also be engaged in developing the reuse concept for materials resulting from the deconstruction of the existing building.
A project that is at once sensitive, sustainable, and innovative, in which we look forward to continuing our commitment!